Sunway GEOLake Residences attracted strong interest from both occupiers and investors. Homebuyers are enticed by the address, greenery and convenience at their doorstep, while investors are eyeing sustainable rental yield supported by the strong demand.
Aqua Villa: A fluid review.
Imagine a low-density townhouse development surrounded by water. No, not flood. But landscaped water features. Well, that’s what Aqua Villa by PKNS Property is all about.
With only 26 units offered, this project sits on a 0.8-hectare leasehold land, practising a strata, gated and guarded concept. According to the project’s architect, this is PKNS’ first high-end townhouse project with contemporary designs. Looking at the product, one has to agree the statement flows true.
Having been completed in 2013, only 4 units are now left and they’re all as the website says ‘Ready to move in’.
So, want to know if this property is the right one for you? Then sit back, sip some water, and continue reading on this review for Aqua Villa Shah Alam.
Project Details.
Address: Seksyen 7, Shah Alam
Land Title: Residential
Tenure: Leasehold (starting from 2014)
Site GPS Coordinates: 03°04′43.1″N 101°29′07.7″E
Website: http://pkns-property.com/1/index.php
Expected Date of Completion: 2013 (Ready to move in)
Property Details
Property Type: 1 ½ Storey Townhouse
Total Units: 26
Built Up in Sq. Ft.: 1953 – 2408
Price: RM701,696 – RM864,976
Maintenance Fee: RM0.40 per square feet
Special Features:
- Low density
- Landscaped water features
- Solar water heater for shower
- Designer bathrooms
Facilities:
- Gated & Guarded
- Private Residents’ Lounge with Swimming Pool
- Video Intercom System
- CCTV at Guard House
- Access Card
Unit Type:
- Type A – 3+1 Bedrooms, 3 Bathrooms (1953 Square Feet)
- Type A1 – 3+1 Bedrooms, 3 Bathrooms (2118 Square Feet)
- Type B – 3+1 Bedrooms, 3 Bathrooms (2267 Square Feet)
- Type B1 – 3+1 Bedrooms, 3 Bathrooms (2408 Square Feet)
Project Details
Aqua Villa: Limited exclusive townhouse.
It can’t get any more low-density than this.
With only 26 units of town homes, Aqua Villa is a project by PKNS Property that was completed way back in 2013. Its unique concept of water (hence the name ‘Aqua’) is definitely the selling factor to its successful reception. As of now, only 4 units are left where 1 one them is the lower unit, whilst 3 are upper units.
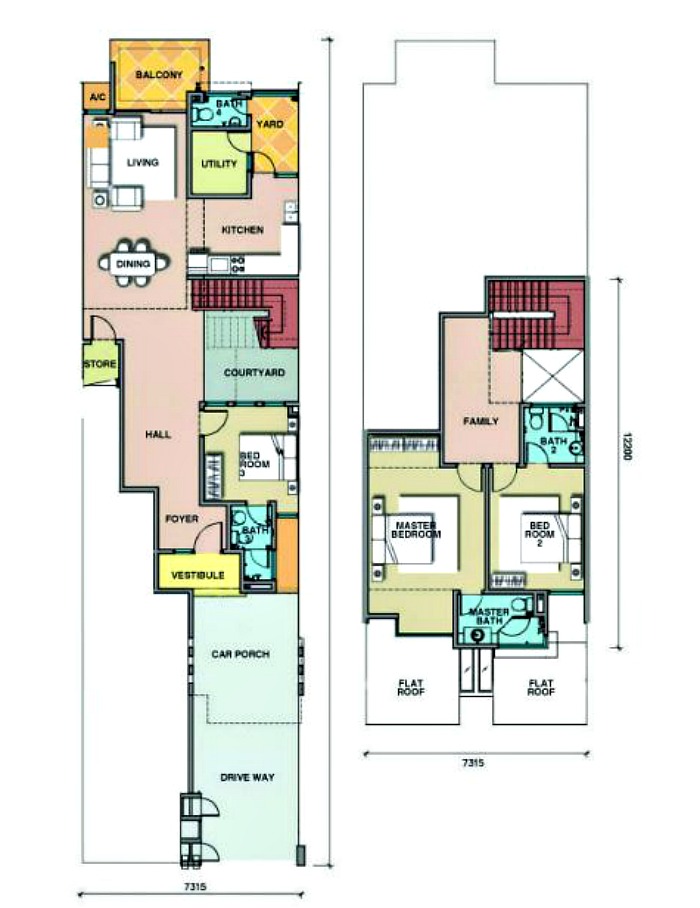
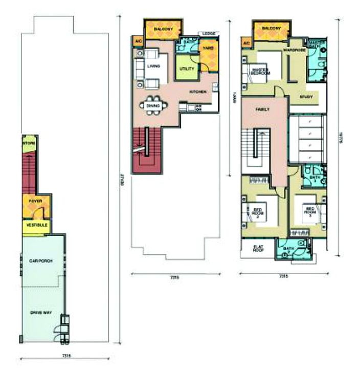
The 3 storey design is divided fairly at 1 storey and a half for both lower and upper options, sharing the same entrance stairs. There are four types offered, all having 3+1 bedrooms and 3 bathrooms, starting with Type A at 1953 square feet, Type A1 at 2118 square feet, Type B at 2267 square feet, and Type B1 at 2408 square feet. The dimensions range from 24ft x 90ft and 28ft x 90ft.
The price starts from RM701,696 to RM864,976, though be sure to ask for further discount from the developer. Freebies include free air-conditioning systems for all rooms (living room and kitchen included), solar water heater for the bathrooms, and designer bathrooms. Not bad, eh?
Then there’s the facilities. Set at the edge of the property, residents can enjoy themselves in the children playground, residents lounge, a swimming pool, and of course lush water-themed landscaping. For all these, one will have to pay RM0.40 per square feet for the maintenance fee, though this is waived by the developer for the first two years.
Security-wise is rather excellent. There’s for every unit; video intercom system for a quick response from the guards, CCTV at the guard house, and security access card control system. Residents can then rest assured that they’ll get to enjoy every bit of tranquillity offered by this project with peace of mind.
Clearly, this project is set for young executive families who’s not only looking for homes, but also a lifestyle. To own a unit here for student-rental-purpose may pose quite the challenge since most residents wouldn’t like that as it takes away the ‘family feeling’ to the whole project.
Location
Section 7 Shah Alam: The most famous of them all.
Want to be admired by family and friends alike on your knowledge of Shah Alam? Study these.
Shah Alam is the capital of the Selangor state and was named after the late Sultan Alam Shah. It covers a land area of 293km2 and is governed by Majlis Bandaraya Shah Alam (MBSJ) or Shah Alam City Council. It has been thriving nicely, property-wise, over the years thanks to the many demands, causing more and more property developers to shift their focus there.
Comprised of 56 sections (and counting), these many sections of Shah Alam all have a specific theme used to name the streets within it. Take Section 13’s ‘Types of Sports’ theme. Naturally, you’ll find street names like Jalan Akuatik (English: Aquatic Street), and Bulatan Stadium (English: Stadium Roundabout).
Bordered by other mature townships like Subang Jaya, Petaling Jaya, and Klang, connectivity-wise, one can expect an array of highways serving the area like the Federal Highway, the New Klang Valley Expressway (NKVE), the Shah Alam Expressway (KESAS), the Guthrie Corridor Expressway (GCE), the North-South Expressway Central Link (ELITE) and the Kemuning-Shah Alam Highway (LKSA).
Like other districts in Selangor however, Shah Alam sorely lacks in dependable public transport. In this day and age, this means an efficient train service. The controversially slow KTM service has a handful of stations there like in Batu 3 and Padang Jawa but apart from those, residents of Shah Alam mostly have to make do with buses and cabs and of course, their own private vehicles to get about.
But for those who don’t really care for other places and prefer to stay in Shah Alam twenty-four-seven, then there’s no doubt that this city has all the modern-day conveniences to offer. With more than fifty primary and secondary schools, Shah Alam is also home to the famous University Teknologi MARA (UITM), University Selangor, and the Management and Science University to cover the tertiary educations.
In terms of healthcare, Shah Alam has its own community clinic called Poliklinik Komuniti Shah Alam and after years of delay, the Shah Alam Hospital was finally opened next door in October 2015 to the public. Said to help ease the congestion of patients in Klang Hospital, it is also used as a teaching hospital for the undergraduate and post-graduate medical students.
And if you’re an active kind of person, you’ll appreciate Shah Alam Sports Complex. Housing a stadium with 80,000 seats capacity called Shah Alam Stadium, an indoor stadium called Melawati Stadium that can accommodate 40,000 people at a time, a public swimming pool called Darul Ehsan Aquatic Center, and an extreme-sports park called the Shah Alam Extreme Park, here is heaven for the sports enthusiasts indeed.
Section 7 Shah Alam is also known to many Shah Alamian (apparently that’s what people of Shah Alam are called) as the ‘It’ section; its closest competitor being none other than Section 13. Carrying the theme of ‘Diamonds and Minerals’, naturally you will find street names like Jalan Ferum and Jalan Magnesium here.
Why are these two sections the most popular you ask? That would be because of the universities and the students; UiTM and UNISEL in Section 7, and MSU in Section 13. The abundance of students in an area generally means exponential growth in the commercial section. Hence with so many hipster cafes and restaurants, vape shops and whatnots, it’s no wonder that Section 7 is considered as an ‘It’ place.
Without traffic, one can easily reach there from KL in just around 30 minutes, through many options of highways. To cut costs on tolls, the advice would be to use the Federal Highway since from it, there’s a direct exit to Section 7 where you’ll encounter the back-gate of UiTM Shah Alam as a mark.
Apart from the universities and the commercial areas, amenities-wise is pretty great for folks of Section 7. In a radius of 5 to 10 kilometres, a resident there can access Shah Alam Hospital (just a bit farther ahead from UiTM’s back-gate), a recreational lake park, a primary school called Sekolah Kebangsaan Seksyen 7, an international school called MAZ International School (which is literally behind Aqua Villa), and Section 7 Mosque.
Then there’s also I-City, a recently developed mixture of properties (high-rise mostly) and a theme park. Known as ‘The City of Lights’, the theme park also hosts a bunch of entertainment like Waterworld, Snowalk, and even a hotel.
The lands in Section 7 is a mixture of freehold and leasehold; Aqua Villa falling in the latter. And the properties there are a mixed bunch too. From elite bungalow lots to exclusive Semi-Ds and terraces, there also worn-down flats mostly occupied by renting students and young workers.
Section 7 has proven over time to have a balance of peace and tranquillity, and the buzz of a well-developed township. Obviously it’s good for investors since students will always be around, but it’s not bad for own-stay too.
A place where the community is unconventional indeed.
Analysis
Aqua Villa: An assessment.
Section 7 as mentioned is very versatile where cheap flats are built literally across the street to exclusive bungalows. Some are leaseholds while others are freeholds.
It would then be really interesting to see how the cheap flats (mostly for rental purpose) and the appreciating price for the high-end properties are doing.
| Name | Tenure/Land Title | Price | Built-up (in Square Feet) | No of Units |
| Aqua Villa | Leasehold/Residential | RM701,696 – RM864,976 | 1953 – 2408 | 26 |
| Flat Nilam Sari | Leasehold/Residential | Rental from RM700 onwards | 650 | NA |
A basic Nilam Sari unit is still quite pricey but there’s no denying the fact that houses for rent are easily snapped up here. If a flat like Nilam Sari can fetch such price, there’s no doubt that the more high-end projects in Section 7 will appreciate exponentially given time.
PKNS Property: One of the best out there.
PKNS or also known as Perbadanan Kemajuan Negeri Selangor needs no introduction. Well, at least not to the Selangorians. For more than 50 years, this award winning developer has developed townships like Petaling Jaya, Bangi, and Shah Alam. More than 160,000 residential units, 6000 shop-lots, and 500 factory lots have been built by them.
Generally liked by the people, PKNS Property is known for building affordable homes, though recently they’ve ventured more into high-end lifestyle properties. Still, at a much reasonable price as compared to other projects.
Summary
Aqua Villa: The conclusion.
If you can overlook the fact that Aqua Villa is a leasehold, then there’s no doubt that this property is one of the best offered in Section 7.
The concept is super nice. Although it’s quite pricey, it’s still acceptable. And when you think about it, to own a home that comes with a soothing sound from the water features is rather worth it despite the price.
Location-wise, there’s no doubt that it’s good. Definitely not far away from civilization that can make one loses their minds, but tucked nicely away from the madness all the same.
Give it for own-stay first before testing the market for rental purpose.










