Angkasa Condominiums is a freehold condominium nestled in Taman Connaught, Cheras.
An elegant view of Vina during the night
Going Green in the Heart of Cheras
Today, the world is increasingly concerned about healthy living and going green. There has been a growing interest among young families and middle class individuals on practising and maintaining a healthy lifestyle despite their hectic everyday life. This is the target market that Mitraland Cheras Sdn Bhd aims to appeal with the development of Vina Versatile Home. Vina Versatile Home is a free hold lifestyle and eco-centric development by this subsidiary of Mitraland. Targeted at healthy living and wellness focused customers, Viva Versatile Home boasts of 60% greenery of its development, a 610 meters long jogging track cum Forest Walk, and resort-like recreational pool. Vina three towers featuring different layouts which will appeal to different type of potential residents with selected ones featuring a Dual Key concept which will appeal residents who wish to rent part of their unit out. The property is slated to be completed by June 2016.
Developers Details
Developer Name: Mitraland Cheras Sdn Bhd (a subsidiary of Mitraland Group Sdn Bhd).
Previous Property Development Projects: 16 Quartz, Melawati, Lake 6 Entrepreneur Park, and Cascades Kota Damansara.
Current Property Development Projects: Gravit 8, Klang South and Esque, South Yarra.
Awards / Achievements: BrandLaureate Premier Brand ICON Leadership Award 2015, Asia Pacific Entrepreneurship Award 2015 (Outstanding & Exemplary Achievement in Entrepreneurship), and South East Asia Property Awards (Best Mid-Range Condo Development 2015 – Viva Versatile Home).
Project Details
Chic entrance statement in Vina Versatile Homes
| QuikPro No | : UP2990186 |
| Address | : Jalan Seri Taming, 56100 Kuala Lumpur |
| Property Type | : Condominium |
| Land Title | : Residential |
| Tenure | : Freehold |
| Bumi Discounts | : TBC |
| Sales Gallery | : Lot 2850, Jalan Seri Taming, Cheras, 56100 Selangor. |
| Site GPS Coordinates | : N3.049312, E101.753003 |
| Website | : www.vina.com.my |
| Expected Completion Date |
: June 2016 |
| Total Units | : 474 units |
| Built Up Area | : 900 – 2887 sq ft |
| Listing Price | : RM 490,000 – RM 1,500,000 (Launch price) |
| Price per Sq. Ft. | : Launch price from RM500 psf. Current price approximately RM600 – RM700 |
| Maintenance Fee per Sq. Ft. | : RM0.25psf + 10% sinking fund |
| Parking Bay per Unit | : 2 bays |
| Development Type | : Condominium Tower only (Tower A, B and C) |
| Unit Type | : Tower A & B |
| Type A – 1,250 sq ft | |
| Type B (with Dual Key) – 1,550 sq.ft. | |
| Type C (Penthouse) – 2,887 sq ft | |
| Tower C (900 sq ft) | |
Facilities & Amenities:
- Jogging Track / Forest Walk
- Picnic Area
- Tai Chi Area
- Reading Room
- Games Room
- Floating Cabanas
- Cafeteria
- 50m Resort Pool with Central Floating Deck
- Aqua Gym
- Jacuzzi
- Wading Pool / Wet Play zone / Children’s Playground
- Gymnasium
- Function Hall
- Surau
Special Features:
- Unique elevated recreational park consisting of a resort-like recreational pool, 60% green landscaped area and 610m jogging tracks.
- Dual key concept (Type B & C only)
- Facilities such as yoga or Pilates zone and gymnasium.
- 3 tiered 24hrs security.
- Ease of access to major highways such as Silk and Cheras-Kajang Expressway
Project Details
Work in progress at Vina Versatile Homes
Vina Versatile Home features 3 high-rise residential towers built on a 7.5 acres freehold land in Bandar Tun Hussien Onn, Cheras. With its tagline “Skies Above, Green Below”, Vina aims to offer spacious lifestyle condominium with high-end comprehensive recreational facilities with a “Going Green” theme by having 60% of its development filled with greenery. With only 474 units available on a 7.5 acres land, Vina is considered to be a low density residence.
Tower A is 17-storey tower containing 132 units and Tower B is a 26-storey tower with 200 units. Both towers have three different layouts namely Type A, B and C(Penthouse) with built-up area of 1250sqf, 1550sqf and 2887sqf respectively. Only Type B & C comes with the Dual Key concept where they have a separate studio unit attached to it. Tower C, a 12-storey tower with 142 units, only has 900sqf units in the entire tower.
Master Plan showing location of the Towers. Location D points to the recreational area
The property is slated to be completed by June 2016, which is just a month away at the time of this writing.
Construction progress as of March 2016
Residents are able to enjoy first-rated urban resort living with the facilities available in Viva Versatile Home. The real attraction lies within its unique recreational park boasting 4 acres of Green Deck, 60% greenery in its landscape, a 610m jogging track or Forest Walk, 50m resort pool with central floating deck, floating cabanas, a gymnasium and many more. With such features, Vina aims to promote healthy living and appeal to such crowd.
Residents need not worry about the lack of security as Viva Versatile Home will be secured by a 3 tiered security system, a guarded entrance and dual-key concept units.
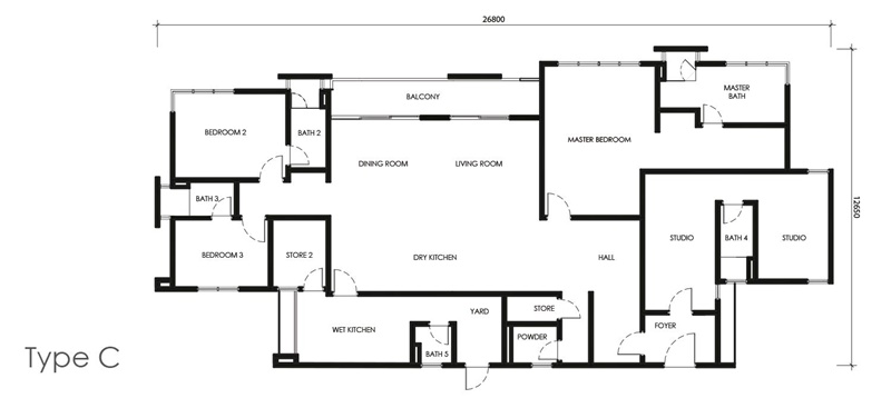
Floor Plan
There are a total of four floor plans released by Mitraland, namely Type A, B, C and D. Units in Tower A and Tower B are made up of Type A, B and C which spans 1250sqf, 1550sqf and 2887sqf respectively. Only the Type B and Type C are built with the Dual Key concept. Type C is the penthouse unit in each tower.
The Dual Key concept is condominium unit with a self-contained studio unit attached to it. Entrance to both units is located in a shared foyer that open into separate living areas with no compromise in privacy. Owners can choose to rent the studio unit out or use the area for themselves.
Tower C only consist of units which spans 900sqf. There were two floor plans released by Mitraland which was labelled Type C. We presume that the smaller unit is the Type D and is only available in Tower C.
This Type C layout is presumed to be the layout for all the units in Tower C.
Location
Vina Versatile Home is located at Bandar Tun Hussien Onn, a Cheras town within the vicinity of Bandar Sg. Long, Bandar Mahkota Cheras, and Balakong. Being an established township, Cheras offers no short of amnesties such as education, dining, living, and shopping. Government schools are aplenty with offerings of private education institution such as UCSI University, UTAR Sungai Long Campus, Cempaka International School, and Masterskill Nursing College. In terms of shopping, choices include Aeon Cheras Selatan, Aeon BIG, Cheras Central, and Gant Supermarket but options at further distance include IKON Connaught, Cheras Leisure Mall, IKEA Cheras, and famous malls in the city centre. Medical care centers are available such as Columbia Asia Hospital and Cheras Pantai Medical Centre.
From top: Aeon Cheras Selatan and the Bandar Tun Hussein Onn 2 school
Getting to Bandar Tun Hussein Onn is relatively easy because it is directly connected to major highways such as the Cheras- Kajang Expressway and SILK Highway. The former links up with the East-West Link which also links to Sungai Besi Highway and the MRR2. There will be better convenience upon the completion of the MRT project, residence can easily commute to the city centre via the Bandar Tun Hussien Onn or Taman Cuepacs stations.
The Cheras-Kajang Expressway which links Cheras to Kajang and the city centre of Kuala Lumpur.
In terms of location, Vina is surrounded by both posh looking houses and not so pleasant looking apartments at the same time. This is because the area is undergoing a major transformation and it will take some time before it becomes a very beautiful place to stay. Nonetheless, you will find a very homely environment when you have reached the neighbourhood, as not much traffic will be around and it is sheltered from the hustle and bustle of the city centre.
From top: Low cost flats adjacent to Vina Versatile Homes and posh landed properties surrounding the area
Analysis
Pricing
| Name | Tenure/ Land Title | Price (per Sq. Ft.) | Maintenance Fee (per Sq. Ft.) | Car Park Bays |
| Vina Versatile Home (Mitraland) | Freehold | RM500 – RM700 | RM0.25 + 10% sinking fund | 2 |
| The Netizen (KEB Group) | Freehold/ Commercial | RM650 – RM700 | RM0.33 (to be revised) | 1-2 |
| You Residences (PJD Regency) | Freehold/ Commercial | RM650- RM700 | RM0.30 | 1-2 |
| Windows on the Park (SDB Properties) |
Freehold/ Residential | RM600- RM700 | RM0.27 | 1-2 |
At launch, the prices of the units sold ranges from RM490,000 to RM1,500,000, the latter presumably to be the penthouse, resulting in a per square foot price of approximately RM500 per sqf. Prices have not hovered too far off since with the smallest unit is being offered at under RM600,000. Comparing against its competition with the likes of The Netizen and others listed in the table above, Vina Versatile Home looks to be a great bargain for money considering the lavish facilities and the convenience it offers. The units with the Dual Key concept can subsidize part of the monthly instalment from the rental of the studio unit.
Summary
Final Analysis
Stylish swimming pool in Vina Versatile Homes
Vina Versatile Home, as stated in its name, does offer versatility to its owners and residents. From healthy living, Dual Key concept, and the convenience that comes with it, it not only appeals to young families who wish to resides within the vicinity of Kuala Lumpur but also young professionals who work in the city centre of Kuala Lumpur. With the increasingly costly property market, residents can look forward to not just a spacious home with comprehensive facilities but also an affordable home, with or without the Dual Key units. Vina will definitely appeal especially with the completion of the MRT project.






















