Grandezza has exclusive access to the 24,500 sq ft clubhouse, which features an elegant cube-inspired architecture. In the vicinity are sculptured trees, a roundabout with water features, and a dramatic entrance statement.
Eco Sanctuary is an eco-themed gated and guarded township that spans across 308 acres in the Klang Valley. Located there is duduk, a new brand of development by Eco World Development Group Bhd. It offers the younger generation of urban dwellers an easy entry to homeownership for a modern high-rise.
duduk was inspired by the successful launch of apartments at the Eco Majestic township in Semenyih in 2016. Launched in 2020, homebuyers can choose a duduk unit either in Eco Sanctuary at the south of Kota Kemuning, or Eco Ardence at Setia Alam.
The budget-friendly developments are Se.Ruang D’ Eco Sanctuary (Se.Ruang), and Huni D’ Eco Ardence (Huni). Located within mature townships, these high-rise homes are suitable for young families, singles, or for future investment. The brand will take advantage of the existing infrastructure, built environment, and comprehensive amenities, within mature EcoWorld townships.
Se.Ruang D’ Eco Sanctuary has a gross development value (GDV) of RM358 million and is built on a 7-acre leasehold parcel. According to the developer, they have seen positive response for both Huni D’ Eco Ardence and Se.Ruang D’ Eco Sanctuary.
Address: Eco Sanctuary, 42500 Selangor
Developer: Eco Sanctuary Sdn Bhd (Eco World Development Group)
Property Type: Serviced Residence
Land Area: 7 acres
Land Title: Commercial
Tenure: Leasehold
No. of Towers: 2
No. of Storeys: 30
Total Units: 960
Sales Gallery: EcoWorld Gallery @ Eco Sanctuary, Lot 41296, Persiaran Eco Sanctuary, 42500 Telok Panglima Garang, Selangor
Year of Completion: Q4 2023
Built-up Area: 570 sq ft & 1,000 sq ft
Facilities:
- Swimming pool
- Gymnasium
- Landscape bridge
- Outdoor reflexology
- Playground
Launch Price: From RM393,000
Launch Price Per Sq Ft:
Maintenance Fee: RM0.25 per sq ft
Project Details
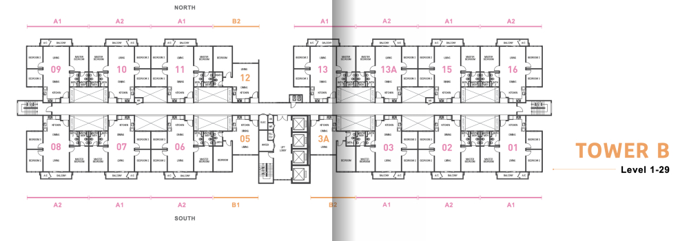
Se.Ruang D’ Eco Sanctuary has two 30-storey towers, with a total of 960 units. The units have well thought-out layouts, with the added bonus of a semi-furnished package. According to the developer, units will be semi-furnished, with a master room wardrobe, lights and fans, kitchen cabinets, a hob, 2 air-conditioner units, 2 water heaters, and a washer dryer. Therefore, homebuyers could move in without having to spend much on renovation.
Units also come with basic smart-home items such as a Google Home Mini, Aqara Gateway, Vacuum Robot, IR Blaster, and Smart Switch. Priced from RM393,000, each unit will have a built-up of 1,000 sq ft and 3-bedroom, 2-bathroom layout, and 2 parking bays. There’s also 570 sq ft studio units. Facilities at Se.Ruang D’ Eco Sanctuary include a swimming pool, wading pool, gym, multi-purpose hall, playground, and barbecue pits. The development will have 4-tier security comprising a guardhouse, perimeter fencing, and lift lobby and lift access. The project is slated for completion in 2023.
Tower A faces north-east or south-west, while Tower B faces north or south. The project’s website has a virtual tour of the show unit.
|
Unit Types |
Built-Up |
|
Type A |
· 1,000 sq ft · 3 bedrooms · 2 bathrooms · 1 balcony |
|
Type B |
· 570 sq ft · 1 bedroom · 1 bathroom |
Location
Located at the south of Kota Kemuning, Eco Sanctuary has accessibility to major expressways like North–South Expressway Central Link (ELITE), Shah Alam Expressway (KESAS), and South Klang Valley Expressway (SKVE). Thus, as Se.Ruang D’ Eco Sanctuary is strategically located within a township that is surrounded by schools, shopping malls, grocers, parks, banks, and hospitals, among others, residents are close to daily conveniences.
For example, Sanctuary Mall is a 10-minute walk away, while Columbia Asia Hospital is about a 15-minute drive away. For shopping, entertainment and food and beverage, residents can also visit Eco Sanctuary City, which houses 154 lifestyle shop offices (Eco Somerset I and II).
Accessibility
- North–South Expressway Central Link (ELITE)
- Kemuning –Shah Alam Highway (LKSA)
- Shah Alam Expressway (KESAS)
- South Klang Valley Expressway (SKVE)
- West Coast Expressway (WCE)
Education
- Oasis International School
- SK Bukit Kemuning
- SMK Kota Kemuning
- Tenby International School Tropicana
- MAHSA University
Medical Care
- Columbia Asia Hospital
Shopping
- Sanctuary Mall
- Quayside Mall
- AEON BiG
- Giant Hypermarket
- Hero Market
- Maxvalue Store
Recreation
- Eco World Residence Club
- Bukit Kemuning Golf & Country Resort
- Tropicana Aman Central Park
- Kota Permai Golf & Country Club
- Hill park
- Cyberjaya Community Club
- Paya Indah Wetland
- Putrajaya Botanical Garden
Analysis
According to the developer, the idea for duduk came at the end of 2019, when they were receiving a lot of enquiries for products priced below RM1 million. For duduk, the target market is the M40 group and a younger demographic comprising first-time homebuyers, young professionals, and young families.
Based on the developer’s review of the psychographics of their target groups, and they found that most of them prefer a product that is convenient, practical and hassle-free. Thus, the units come partially furnished, and with smart home features. Plus, duduk’s products are moderately priced.
Some have compared Se.Ruang D’ Eco Sanctuary with Harmoni Apartment and Karisma Apartment at Eco Majestic in Semenyih, and Aman 1 at Tropicana Aman near Kota Kemuning, due to its price point. Those who are looking for completed projects could take a look at The Parque Residences in Eco Sanctuary.
Do note that Se.Ruang D’ Eco Sanctuary comes with a commercial title. However, some opine that Se.Ruang is one of the hottest projects in Kota Kemuning due to its price range and trust in the developer’s track record.
Here’s a quick look at residential properties in Kota Kemuning.
|
Project |
Land Tenure |
Property Type |
Completion |
Built-up |
Approximate Launch Price |
|
Duduk Se.Ruang at Eco Sanctuary by EcoWorld |
Leasehold |
Serviced Residence |
2023 |
570 sq ft & 1,000 sq ft |
From RM393,000 |
|
Grandezza at Eco Sanctuary by EcoWorld |
Leasehold |
Semi-detached |
2019 |
2,903 sq ft – 6,075 sq ft |
From RM1.9 million |
|
The Parque Residences at Eco Sanctuary |
Leasehold |
Condominium |
2019 |
516 sq ft – 1,388 sq ft |
From RM397,000 |
|
Casa at twentyfive.7 by Gamuda Land |
Leasehold |
Double-storey semi-detached |
2020 |
3,023 sq ft |
From RM1.99 million |
|
Dalia Residences by Tropicana Aman Sdn Bhd |
Leasehold |
Double-storey semi-detached |
2020 |
3,976 sq ft – 4,803 sq ft |
From RM1.8 million |
|
Broadleaf Residences by BCB Berhad |
Leasehold |
3-storey semi-detached |
2020 |
4,654 sq ft – 6,081 sq ft |
From RM2.2 million |
|
Amber Residence by Gamuda Land |
Leasehold |
Serviced apartment |
2021 |
552 sq ft – 1,000 sq ft |
From RM417,800 |
|
Elemen Residences by Tropicana Corporation Bhd |
Leasehold |
2-storey terrace / superlink |
2022 |
3,013 sq ft – 3,172 sq ft |
From RM1.06 million |
|
Sencilia @ Eco Sanctuary by Eco World |
Leasehold |
2-storey terrace house |
2023 |
1,719 sq ft & 1,737 sq ft |
From RM888,000 |
Summary
Se.Ruang will leverage on the available amenities and infrastructures in Eco Sanctuary. Therefore, residents will be close to existing parks, shop lots, eateries, and lots more. For the coming years, the developer has mentioned that they would be concentrating on creating new ways of living within their projects. These products will be more broad-based, and focused on community building. They will also continue to introduce innovative designs and concepts that are in trend. For duduk projects, the developer is confident that they will be well-received.
If you’re interested in a 1,000 sq ft unit at Se.Ruang that’s priced at RM393,000, here are its estimated loan figures.
- LTV / margin of finance: 90%
- Down payment (10%): RM39,300
- Loan amount: RM353,700
- Loan term: 30 years
- Interest rate: 3.2%
- Monthly repayment: RM1,588
- Approximate required gross annual income: RM61,500*
Calculations are based on the PropertyGuru Home Loan Calculator, and PropertyGuru Home Loan Eligibility and Affordability Calculator. Try them to estimate the figures that are right for you!
Can you afford the loan for this property?
DSR is a method used by banks in Malaysia to calculate whether you can afford the loan you’re applying for. To calculate your Debt Service Ratio (DSR), try the FREE PropertyGuru Loan Pre-Approval tool. It has a 99.9% accuracy, which helps you to avoid loan rejections.
* Assumptions: No other monthly debt obligations, and 30% of gross income spent on the home loan. As a rule of thumb, banks usually loan up to 30% of your gross annual income.
Keep browsing Malaysia’s largest property site for more project reviews.

















