Read our honest review on Greenfield Residence, Bandar Sunway so that you can make confident property decisions.
Edelweiss is nestled in the bustling neighbourhood of Tropicana Indah, Kota Damansara in Petaling Jaya. It is the fifth tower and latest final tower of the Tropicana Gardens development. Edelweiss Small Office Flexible Office (SOFO) and serviced residences was launched in September 2020.
The development infuses Smart Living and Conveniences concept. Developed by Tropicana Corporation Bhd, it was planned with young executives and urbanites in mind. It delivers a combination of city offices and serviced residences, and the surrounding township adds value to the property. Phase one of the project has a 75% take-up rate to date, prior to its official launch.
Following the success of the other towers at Tropicana Gardens, the developer incorporated feedback from Edelweiss customers. They ensured that it exuded urban vibes, and at the same time gives residents a quiet place to call home. Edelweiss SOFO and Serviced Residences at Tropicana Gardens spans 2.35 acres with a gross development value (GDV) of RM855 million.
Address: Tropicana Gardens, Tropicana Indah, Petaling Jaya, 47410 Selangor
Developer: Tropicana Indah Sdn Bhd
Property Type: SOFO & Serviced Residence
Land Area: 2.35 acres
Tenure: Leasehold
No. of Storeys: 52
Total Units: 1,027
- Serviced Residences: 630 units
- SOFO: 397 units
Sales Gallery: Lot 52581, Tropicana Gardens Sales Gallery, Jalan PJU 3/21, Tropicana Indah, 47410 Petaling Jaya, Selangor
Year of Completion: 2024
Built-up Area: 452 sq ft – 1,111 sq ft
- Serviced Residences: 556 sq ft – 1,111 sq ft
- SOFO: 452 sq ft – 858 sq ft
Facilities:
- 50m infinity pool
- Children’s pool
- Wading pool
- Yoga deck
- Children’s playroom
- Children’s playground
- Reading room
- Gymnasium
- Barbeque area
Launch Price:
- Serviced Residences: From RM582,000 (indicative)
- SOFO: From RM438,000 (indicative)
Project Details
Edelweiss Service Residence is slated for completion in mid 2024. It is the final phase of high rise development in Tropicana Gardens. The 52-storey tower comprises 397 units of SOFO with built-ups from 452 sq ft to 858 sq ft, and 630 units of service residences with built-ups from 556 sq ft to 1,111 sq ft. Edelweiss SOFO and Serviced Residences offer balconies with views.
A unique feature for Edelweiss is that it offers various layouts for multi-generational living and dual-key units which are investment-friendly. The development also features a multi-tiered security system and smart home concept which includes a smart home hub, door sensors, smart sockets, and air-conditioner control systems.
The flexible and open layouts at its SOFO units are suitable for an array of businesses, including modern offices and short-term rentals. The indicative price of Edelweiss SOFO units start from RM438,000, while Edelweiss Serviced Residences units start from RM582,000.
The development is designed and constructed in adherence to GreenRE Certification standards with Silver Rating. It has these features:
- Energy efficient
- Water efficient
- Environmental protection
- Indoor environmental quality
- Carbon emission
- Low-emissivity glass that reduces light and heat
- EV chargers
- Low VIC paint
- Green labelled
- Insulated RC flat roof
- Other green features
Facilities include a 50m infinity pool, children’s pool, wading pool, yoga deck, children’s playroom, children’s playground, reading room, gymnasium, and barbeque area. Owners of SOFO units will have access to landscaped gardens, meeting rooms, business centres, and multi-purpose hall in the building. The entrance to the SOFO and the Serviced Residences is separate.
|
Unit Types |
Built-Up |
|
Serviced Residences
|
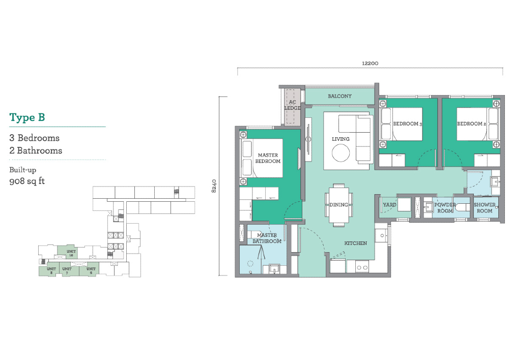
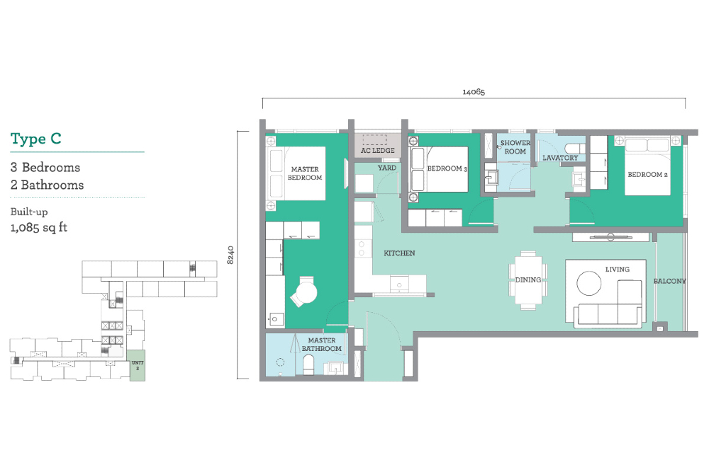
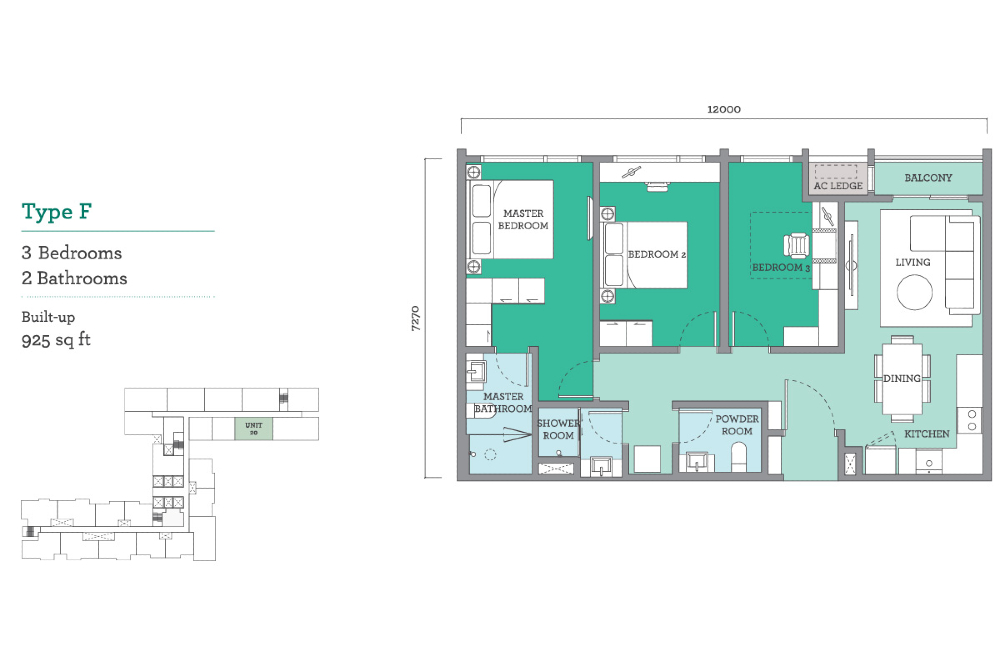
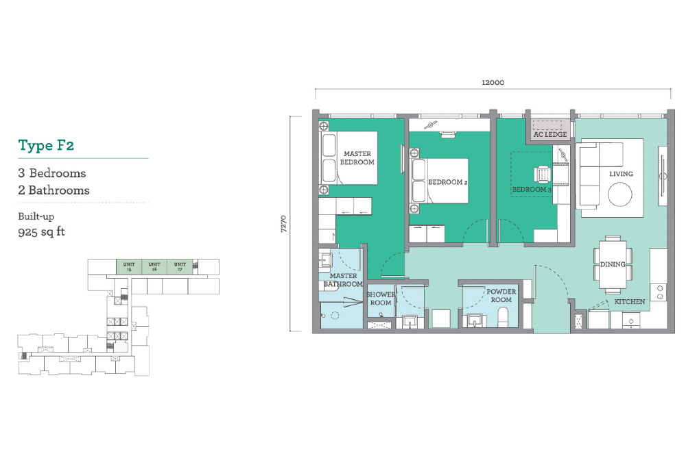
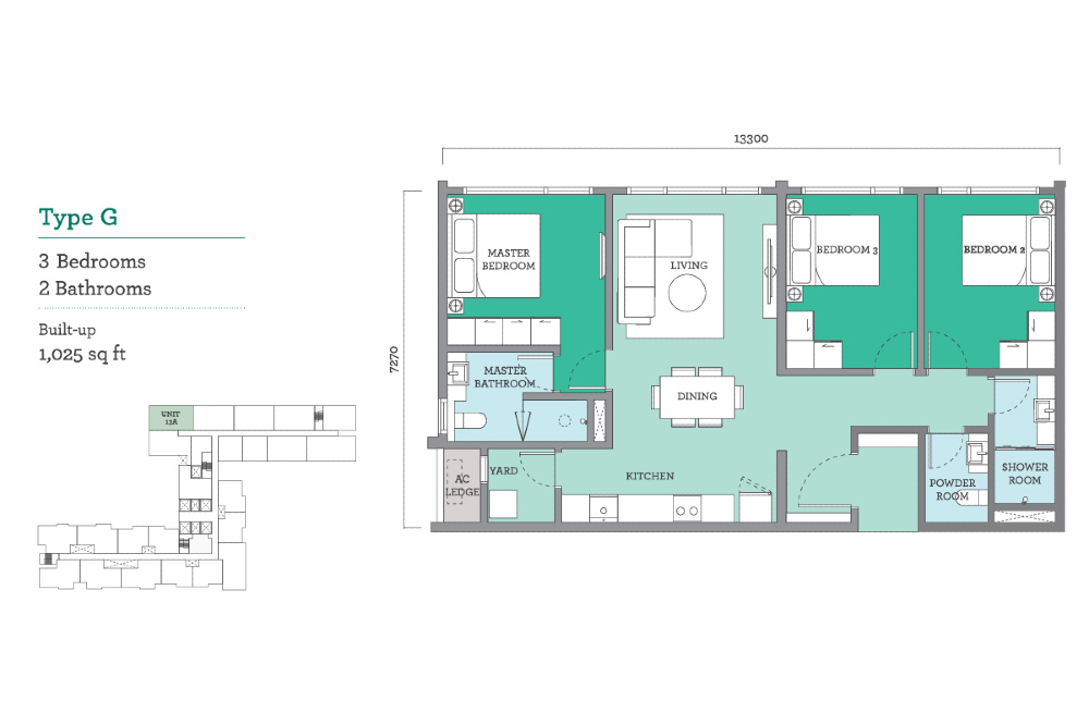
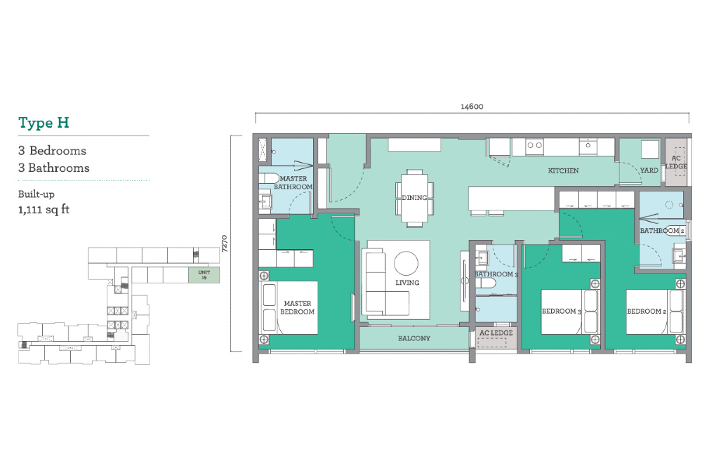
· 630 units · Dual-key units available · 556 sq ft – 1,111 sq ft · Type A: 692 sq ft (2B+ 2B) · Type B: 908 sq ft (3B+ 2B) · Type B1: 890 sq ft (3B+ 2B) · Type C: 1,085 sq ft (3B + 2B) · Type D: 556 sq ft (1B + 1B) · Type E: 751 sq ft (2B + 2B) · Type F: 925 sq ft (3B + 2B) · Type F1: 924 sq ft (3B + 2B) · Type F2: 925 sq ft (3B + 2B) · Type G: 1,025 sq ft (3B + 2B) · Type H: 1,111 sq ft (3B + 3B) · From RM582,000 |
|
SOFO |
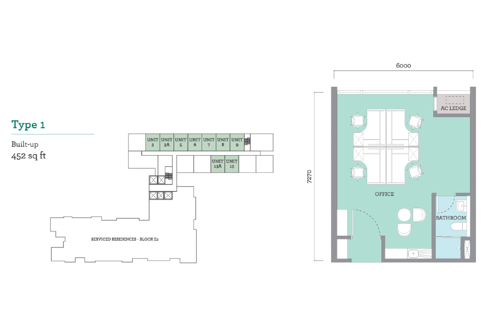
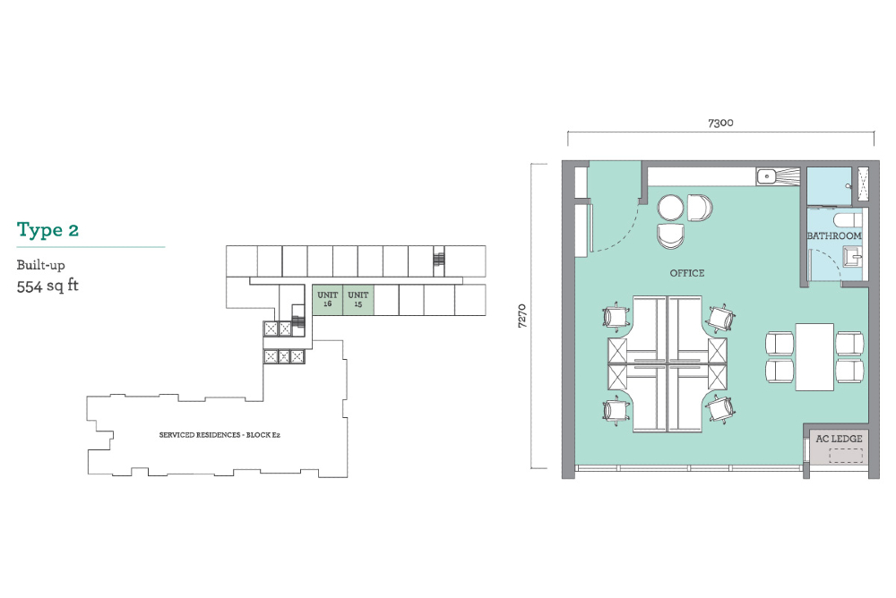
· 397 units · North and south wing · Open plan concept · 452 sq ft – 858 sq ft · Type 1: 452 sq ft · Type 2: 554 sq ft · Type 2A: 555 sq ft · Type 2B: 555 sq ft · Type 3: 750 sq ft · Type 3A: 858 sq ft · Bathroom in all units · From RM438,000 |
Location
Edelweiss SOFO and Serviced Residences feature a pedestrian bridge that connects to the Surian MRT Station (180m away), which is one stop away from Mutiara Damansara and two stops from Bandar Utama. The MRT leads directly to key locations such as Muzium Negara and the high-end shopping enclave of Bukit Bintang.
Here are the number of stops to other stations from the Tropicana Gardens MRT station:
- 1 stop to Kota Damansara station
- 1 stop to Mutiara Damansara station
- 2 stops to Bandar Utama station
- 5 stops to Pusat Bandar Damansara station
- 7 stops to Muzium Negara station
- 10 stops to Bukit Bintang station
The pedestrian bridge also connects to the Tropicana Gardens Mall, which has a 1.1 million sq ft of nett lettable area. In terms of accessibility, Edelweiss SOFO and Serviced Residences is connected to major highways, including the Damansara-Puchong Expressway (LDP), SPRINT Highway, New Klang Valley Expressway (NKVE), and Penchala Link. There’s also a bus station within a short walk (150m away).
Amenities Edelweiss SOFO and Serviced Residences include St Joseph’s Institution International School Malaysia, SEGi University, Seri Selangor Golf Club, Tropicana Golf & Country Resort, Thomson Medical Centre, 1 Utama, The Curve, Sunway Giza, IKEA, and Tropicana Avenue.
Accessibility
- Surian MRT station
- Federal Highway
- Persiaran Damansara Indah
- Persiaran Tropicana
- Persiaran Surian
- New Klang Valley Expressway (NKVE)
- Jalan Tropicana Selatan
- SPRINT Highway
- Damansara-Puchong Highway (LDP)
- Lebuh Bandar Utama
- Penchala Link
Education
- GEMS International School
- SJK (C) Damansara
- SK Tropicana
- SMK Tropicana
- SMK Bandar Utama Damansara 2
- SRK Bandar Utama
- SJK (C) Puay Chai 2
- SMK Damansara Utama 3
- St Joseph’s Institution International School Malaysia (Tropicana PJ Campus)
- SEGi University
- First City University College
- UOW Malaysia
- KDU University College Damansara Jaya
- Asia Pacific Int. School (APIS)
- Sri KDU International School
- Help International School
- Twintech International University College of Technology
Medical Care
- Thomson Medical Centre
- Tropicana Medical Centre
- KPJ Damansara Specialist Hospital
- Subang Medical Centre
Shopping
- Tropicana Gardens Mall
- Sunway Giza Mall
- Strand Mall
- Sunway Nexis
- Tropicana Avenue shop lots
- The Curve
- IPC Shopping Centre
- Lotus’s (Tesco) Mutiara Damansara
- IKEA Damansara
- 1 Utama Shopping Centre
- Centrepoint Bandar Utama
- Atria Shopping Gallery
- Starling Mall
- Damansara Uptown shop lots
- Glo Damansara Mall
- 3 Damansara
- Empire Subang Mall
Recreation
- Seri Selangor Golf Club
- Tropicana Golf & Country Resort
- TPC (formerly known as Kuala Lumpur Golf & Country Club)
- Central Park Bandar Utama
- Champion Badminton Court
- Ara Court Badminton Hall
- Central Park Bandar Utama
- Bandar Utama Golf Course
- The Club Bukit Utama
- Mutiara Damansara Recreational Park
Analysis
Apart from a strategic location, properties that have access to well-established neighbourhoods, good facilities, amenities, and connectivity are the must-haves when it comes to looking at long-term capital appreciation. These are crucial in making property purchases in the current market environment.
Edelweiss lives up to its tagline, ‘Where Business And Lifestyle Come Together’, given the increasing number of Malaysians preferring to work and live in the same environment. The developer has pointed out that the Edelweiss is targeted at young executives, urbanites, young families, and empty nesters.
Here’s a look at residential properties relatively close to Tropicana Gardens.
|
Project |
Land Tenure |
Property Type |
Completion |
Built-up |
Approximate Launch Price |
|
Edelweiss Serviced Residences by Tropicana Corporation Berhad |
Leasehold |
Serviced Residence |
2024 |
556 sq ft – 1,111 sq ft |
From RM582,000 |
|
Tropicana Gardens Dianthus by Tropicana Corporation Berhad |
Leasehold |
Serviced Residence |
2020 |
601 sq ft – 1,406 sq ft |
From RM650,000 |
|
Tropicana Grande by Tropicana Corporation Berhad |
Leasehold |
Condominium |
2013 |
2,283 sq ft – 6,602 sq ft |
From RM1.3 million |
|
The Effingham by Bandar Utama Development |
Freehold |
Zero-lot Bungalow |
2013 |
5,654 sq ft – 10,753 sq ft |
From RM4.3 million |
|
Uptown Residences by See Hoy Chan Group |
Freehold |
Serviced Apartment |
2014 |
734 sq ft – 6,548 sq ft |
From RM584,000 |
|
Tropicana Avenue by Tropicana Corporation Berhad |
Leasehold |
Serviced Residence |
2015 |
660 sq ft – 1,621 sq ft |
N/A |
|
Leasehold |
Serviced Residences |
2019 |
862 sq ft – 2,218 sq ft |
From RM857,650 |
|
|
Biji Living Section 17 by Kampung Manis Realty Sdn Bhd |
Freehold |
Serviced Apartment |
2019 |
550 sq ft – 1,095 sq ft |
From RM447,000 |
|
Leasehold |
Serviced Apartment |
2021 |
678 sq ft – 990 sq ft |
From RM550,000 |
|
|
Atwater by Paramount Property |
Leasehold |
Serviced Residence |
2021 |
670 sq ft – 1422 sq ft |
From RM530,000 |
|
Aera Residence by Chin Hin Property Development |
Leasehold |
Serviced Apartment |
2021 |
718 sq ft – 1,010 sq ft |
From RM380,000 |
|
Ivory Signature Suites by Ivory Panorama Sdn Bhd |
Freehold |
Serviced Apartment |
2022 |
From 922 sq ft |
From RM708,000 |
|
Verando Residence by Masteron Sdn Bhd |
Leasehold |
Condominium |
2022 |
864 sq ft – 1,148 sq ft |
From RM445,000 |
|
121 Residences by Glomac Bhd |
Leasehold |
SoHo / Serviced Apartment |
2023 |
450 sq ft & 750 sq ft |
From RM318,000 |
|
Tropicana Miyu by Tropicana Temokin Sdn Bhd |
Freehold |
Condominium |
2024 |
851 sq ft – 2,183 sq ft |
From RM780,000 |
Summary
Tropicana Gardens is strategically located among the easily accessible and developed neighbourhoods in Kota Damansara. Apart from, Tropicana Corporation Bhd’s property collection includes Tropicana Danga Cove, Tropicana Heights, Tropicana Metropark, Tropicana Danga Bay, Tropicana Avenue, and Tropicana Cheras.
Tropicana Corporation Berhad has have won multiple awards over the years. At the PropertyGuru Asia Property Awards (Malaysia) 2020, Tropicana Corporation Berhad won a long list of awards, including:
- Best Developer
- Winner: Best High End Condo Development (Central) – Tropicana Grandhill
- High Commended: Best Mega Township Developer – Tropicana Aman
- Winner: Best Landed Development (Central) For Tropicana Aman – Dalia Residences
- Winner: Best Mid End Landed Development (Southern) – Ayera Residences
- Winner: Best Development Development – Courtyard by Marriott, Penang @ Tropicana 218 Macalister
- Winner: Best Mixed Use Development – Tropicana Gardens
- Highly Commended: Best Retail Development – Oasis 3
- Highly Commended: Best Housing Architectural Design – Ayera Residences
- Winner: Best Condo Development (Malaysia) – Tropicana Grandhill
- Winner: Special Recognition for ESG (Environmental, Social, Governance)
- Winner: Special Recognition for CSR (Corporate Social Responsibility)
If you’re interested in a unit at Edelweiss Serviced Residences that’s priced at RM600,000, here are its estimated loan figures.
- LTV / margin of finance: 90%
- Down payment (10%): RM60,000
- Loan amount: RM540,000
- Loan term: 30 years
- Interest rate: 3.2%
- Monthly repayment: RM2,425
- Approximate required gross annual income: RM93,500*
Want to change the loan figures? Use these calculators:
Can you afford the loan for this property?
To calculate your Debt Service Ratio (DSR), use the FREE PropertyGuru Loan Pre-Approval tool. It has a 99.9% accuracy, which greatly helps in avoiding loan rejections. DSR is a method used by banks in Malaysia to calculate whether you can afford the loan you’re applying for.
* Assumptions: No other monthly debt obligations, and 30% of gross income spent on the home loan. As a rule of thumb, banks usually loan up to 30% of your gross annual income.
Keep browsing Malaysia’s largest property site for more project reviews.

























